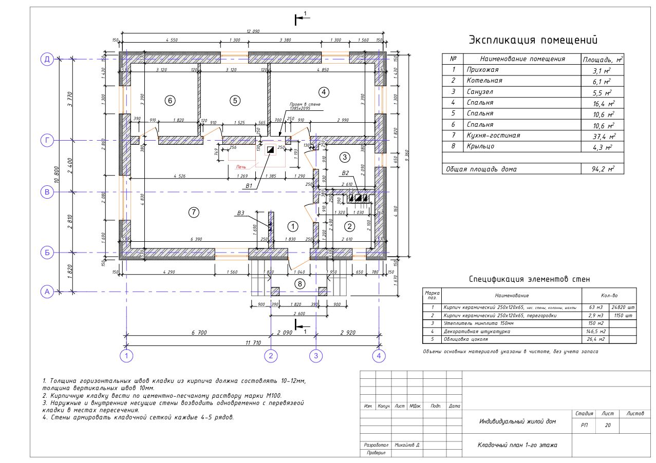
Проект А9-25 с общей площадью 94,2 кв.м.
Стоимость проектирования:
700 ₽ за 1 м²
Дом представляет собой здание сложной прямоугольной формы в плане, с размерами в осях 11,71х10,8м.
Здание одноэтажное.
Конструктивная схема здания – стеновая с продольными несущими стенами.
Фундамент – забивные сваи “Стройматик” 150х150х4000мм
монолитный ростверк h600мм.
Цоколь здания – высотой 600мм от уровня земли, (уточнить по месту).
Наружные стены выполнены многослойными. Несущие стены – кладка из керамического кирпича, толщиной 380мм с утеплением минплитой 150мм и отделкой декоративной штукатуркой. Внутренние несущие стены – кладка из керамического кирпича, толщиной 250 и 380мм. Перегородки -кладка из керамического кирпича, толщиной 120мм При выполнении каменной кладки соблюдать требования СНиП 3.03.01-87 и серии 2.030-2.01 выпуск 1.
Перемычки – сборные железобетонные.
Перекрытия цоколя – выполнено монолитной плитой, толщиной 150мм по уплотненному основанию, с
утеплением ЭППС 100мм.
Перекрытия 1-го этажа – выполнено по деревянным балкам.
Крыша – двухскатная с организованным водостоком, крытая металлочерепицей.
Появились вопросы?
Оставьте свои контактные данные и мы свяжемся с Вами!
ООО «АРС22»
ИНН 2224175635
ОГРН 1152225016932
КПП 222401001
© 2021. APC22 — cтроительная компания в Барнауле, строительство домов, строительство коттеджей, строительство кирпичных домов.







